2172 N Spring Garden AvenueDeLand, FL 32720




Mortgage Calculator
Monthly Payment (Est.)
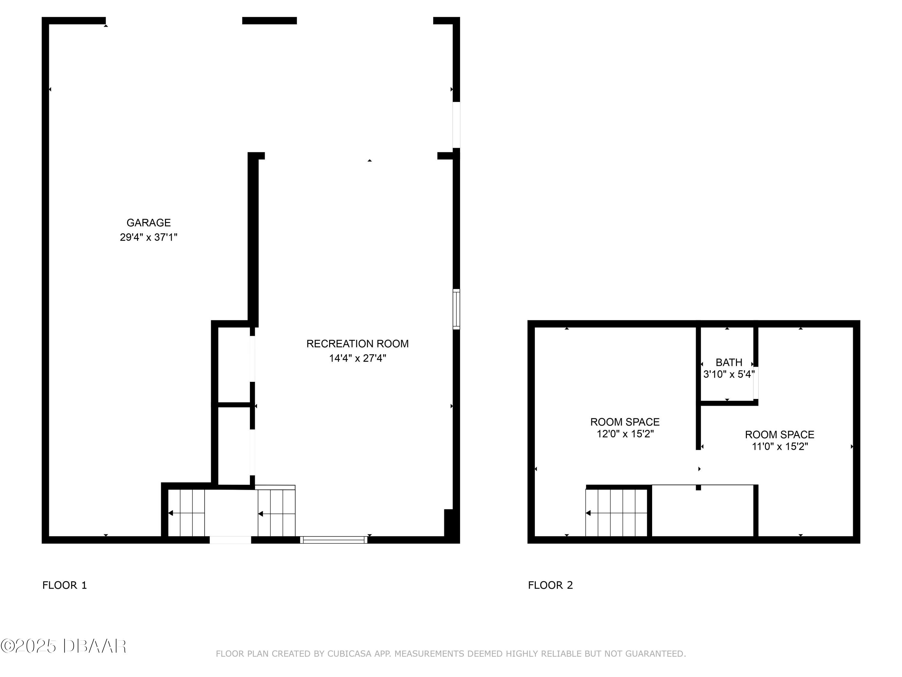
$2,395Investor Special! Fix & Flip Opportunity on Nearly 3 Acres with Two Homes & Endless Potential! Unlock the true potential of this expansive 3-acre property--perfect for savvy investors or visionary homeowners seeking a fixer-upper with massive upside! Featuring a combined total of 4,710 SqFt and 3,618 SqFt of living space, this multi-structure estate offers flexibility, space, and income-generating possibilities. The main residence is packed with character and space, offering 4 spacious bedrooms (3 with walk-in closets and private en-suite bathrooms), a bonus room, dedicated office, large living and dining areas, indoor laundry, and a foyer with impressive volume. The kitchen offers an open-concept layout ready to be customized. The garage--previously used as a private home movie theater--can easily be restored or converted back to a massive garage ideal for boats, small RVs, or a workshop. A major bonus is the detached second building a 1,834 SqFt structure with 742 SqFt of finished living space, currently featuring a full bathroom and kitchenette upstairs. Envision creating two upstairs bedrooms while transforming the downstairs into a cozy living/dining area with full kitchen plus you still keep your oversized garage! Use it as a rental, in-law suite, guest house, or creative studio. The private lot backs up to a small riding trail bring your ATVs, dirt bikes, or just enjoy the wide-open space with room for a pool, gardens, workshops, or recreation areas. Whether you're building your dream family compound or flipping for future resale, this is a rare opportunity you don't want to miss. Schedule your private showing today and let your imagination run wild with everything this property has to offer!
| 6 hours ago | Listing first seen on site | |
| 6 hours ago | Listing updated with changes from the MLS® |
Listing information is provided by Participants of the Daytona Beach Area Association of REALTORS MLS. IDX information is provided exclusively for personal, non-commercial use, and may not be used for any purpose other than to identify prospective properties consumers may be interested in purchasing. Information is deemed reliable but not guaranteed. Copyright 2026, Daytona Beach Area Association of REALTORS MLS.
Last checked: 2026-03-17 05:01 AM UTC
Did you know? You can invite friends and family to your search. They can join your search, rate and discuss listings with you.