358 Monika PlaceSt. Augustine, FL 32080




Mortgage Calculator
Monthly Payment (Est.)
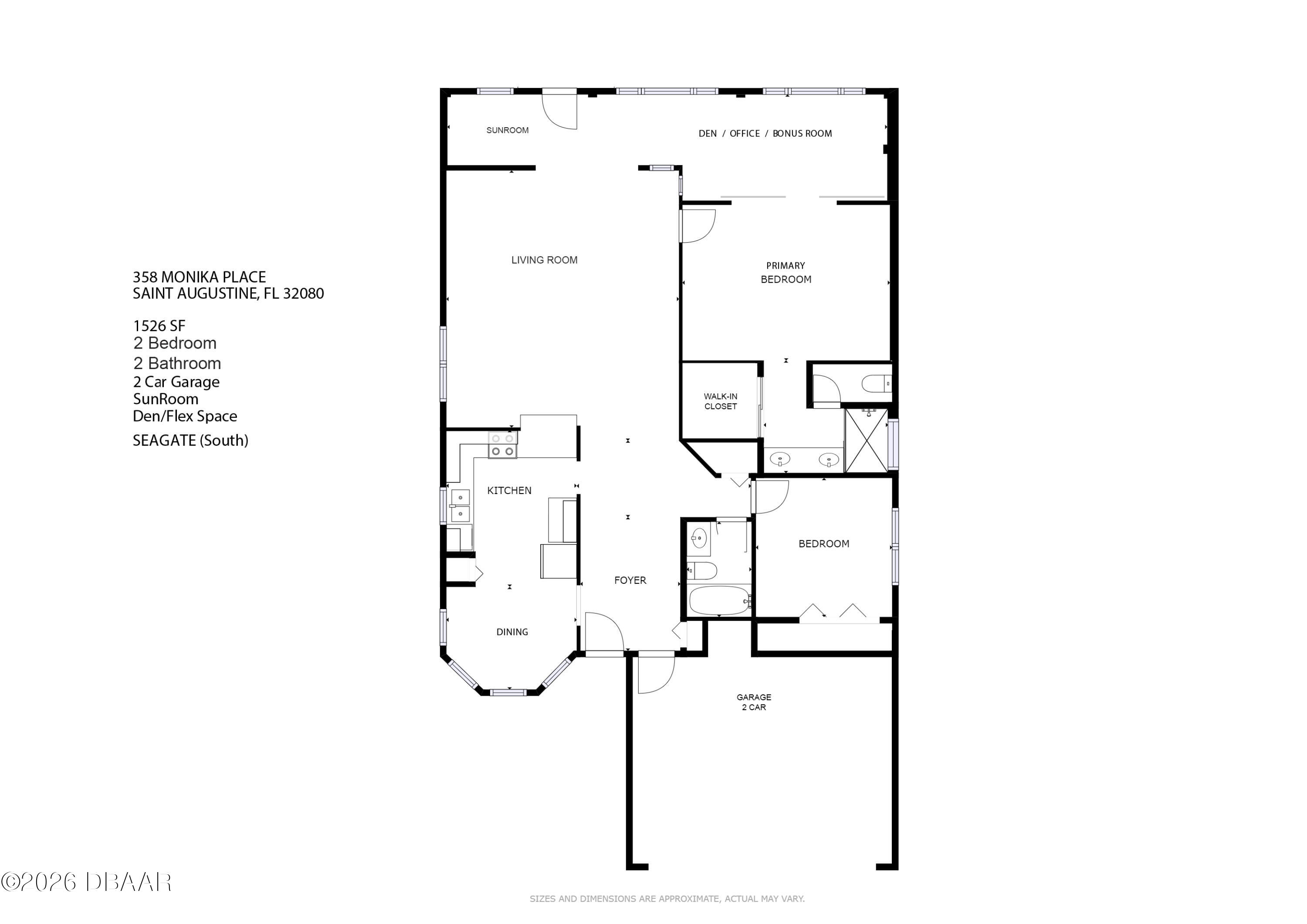
$2,094Low Maintenance Single Family Home Perfect for Easy Living on Anastasia Island Just Blocks from the Beach! Discover Coastal Comfort in this Beautifully Updated 2+ Den Patio Home located in the sought-after gated community of SeaGate (South). Perfectly perched on a desirable corner lot, this residence offers effortless indoor-outdoor living and convenient access to the best of St. Augustine's Anastasia Island lifestyle. Step inside to a bright, open layout featuring high ceilings, transom windows, newly installed LVP flooring and geometric accent wall all nicely enhance the home's modern aesthetic. The updated kitchen shines with gorgeous granite countertops, stainless steel appliances, and ample cabinetry. An ideal space for both casual meals and entertaining. The primary suite is a serene retreat complete with a large walk-in closet, dual vanity, water closet, and a step-in shower ensuite. Charming barn doors provide privacy and style while opening to an oversized sunroom/den, perfect for a home office, reading nook, play space, or additional lounge space. Outside, enjoy a maintenance-free, private, walled tropical backyard and take in the sunset on the charming covered front porch. Two Car Garage offers 20 AMP EV Charger. Situated in a vibrant community, you'll enjoy resort-style amenities including a sparkling pool, tennis and pickleball courts, clubhouse, and an Intracoastal observation park. All this, just moments from the sandy shores of St. Augustine Beach. Live the Florida lifestyle with comfort, convenience, and coastal charm. This island home is ready for you to move in and enjoy! Super low monthly HOA of only $285 month includes YARD maintenance, lawn irrigation, controlled access, and community amenities. AC/HVAC 2021. Water Heater 2018. Re-piped 2018. Roof 2014. Home has NEVER flooded. Seller moving to be closer to family. Take a tour and make an offer today!
| 18 hours ago | Listing first seen on site | |
| 18 hours ago | Listing updated with changes from the MLS® |
Listing information is provided by Participants of the Daytona Beach Area Association of REALTORS MLS. IDX information is provided exclusively for personal, non-commercial use, and may not be used for any purpose other than to identify prospective properties consumers may be interested in purchasing. Information is deemed reliable but not guaranteed. Copyright 2026, Daytona Beach Area Association of REALTORS MLS.
Last checked: 2026-02-13 12:21 AM UTC
Did you know? You can invite friends and family to your search. They can join your search, rate and discuss listings with you.