4084 Halifax DrivePort Orange, FL 32127




Mortgage Calculator
Monthly Payment (Est.)
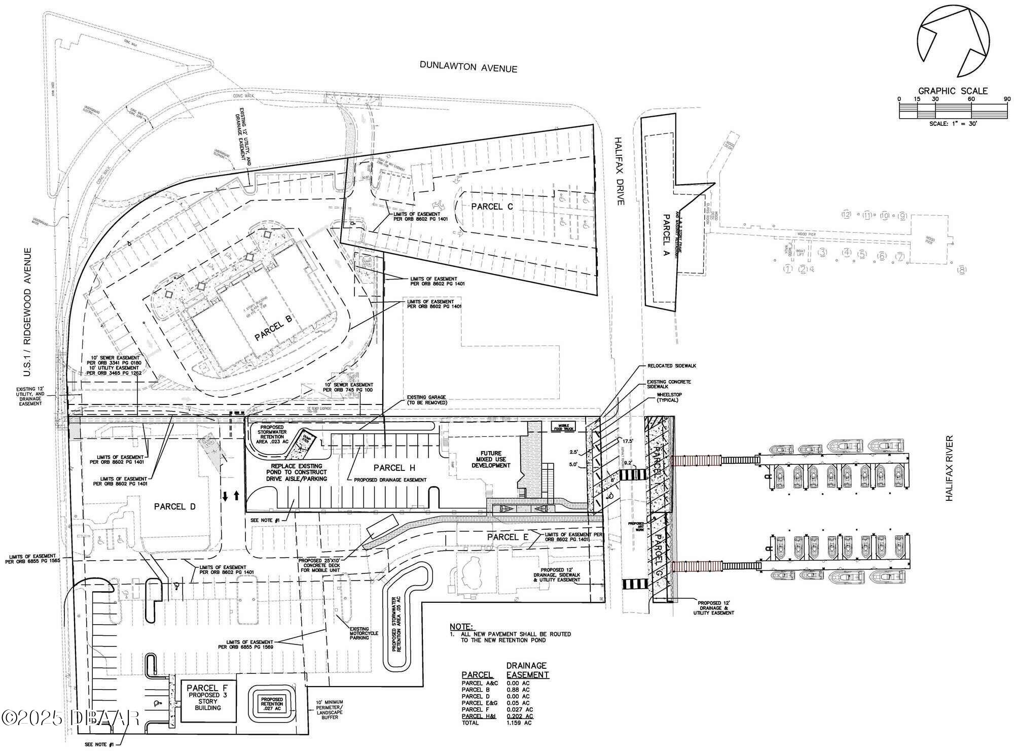
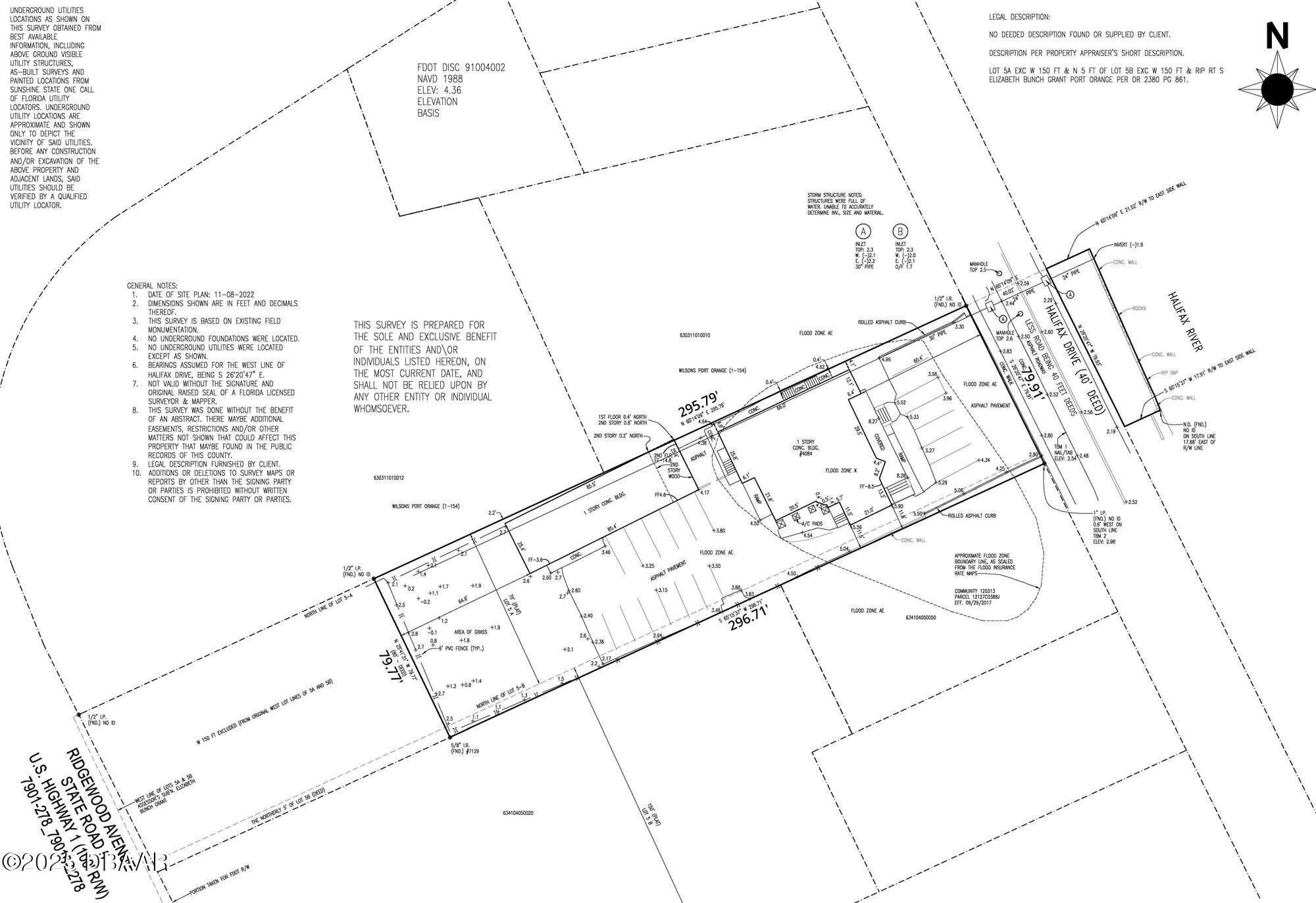
$3,6450.66+/- Acre Riverfront Development with Numerous Possibilities on the Halifax River. Prime riverfront site within the Catfish Commons Planned Commercial Development, offering Mixed Use Center (MXU) zoning and flexible development potential: Residential: Up to 8 long or short-term rental units Marina: Zoned for 12 boat slips for motorized or non-motorized vessels with the City of Port Orange Event Venue: Ideal for waterfront gatherings Mobile Commercial: Flexible use options for pop-up or mobile businesses Additional Highlights Max building height: 45 feet Flexible setbacks and zero-lot-line development allowed Dock access permitted beyond 100 feet (subject to approvals) 6 dedicated marina parking spaces on site City development review and permit fees waived for 5 years (Excludes impact/stormwater fees) Cross access easements in place Strategic Location Part of the vibrant Catfish Commons - a growing mixed-use destination with restaurants, retail, and residential components. Total of 220 shared parking spaces across the PCD, supporting seamless integration with neighboring businesses. Ideal for Developers, Hospitality, or Waterfront Investors Unlock the potential of this rare riverfront parcel - perfect for mixed-use, waterfront dining, boutique lodging, or marina-based operations. 0.66+/- Acre Riverfront Site in Catfish Commons with MXU zoning Flexible Use: Up to 8 rental units, 12 marina slips, or event/mobile business potential Generous Build Options: 45' height, flexible setbacks, zero-lot-line allowed City permit/review fees waived for 5 years (excludes impact/stormwater fees) 220 shared parking spaces across the PCD
| 3 days ago | Listing first seen on site | |
| 3 days ago | Listing updated with changes from the MLS® |
Listing information is provided by Participants of the Daytona Beach Area Association of REALTORS MLS. IDX information is provided exclusively for personal, non-commercial use, and may not be used for any purpose other than to identify prospective properties consumers may be interested in purchasing. Information is deemed reliable but not guaranteed. Copyright 2026, Daytona Beach Area Association of REALTORS MLS.
Last checked: 2026-02-06 02:42 AM UTC
Did you know? You can invite friends and family to your search. They can join your search, rate and discuss listings with you.