806 Black Duck DrivePort Orange, FL 32127




Mortgage Calculator
Monthly Payment (Est.)
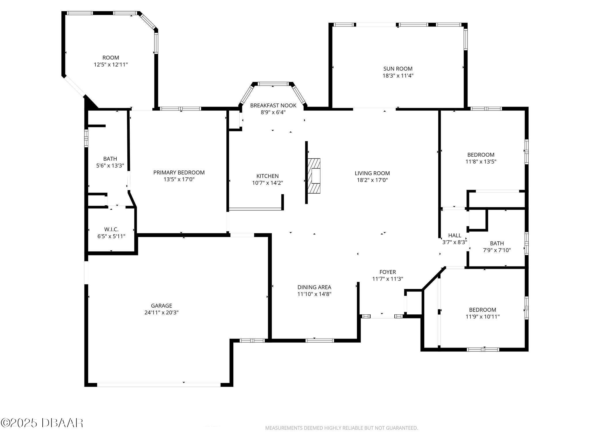
$2,122Seller is offering assistance with buying down Buyers interest rate. WORK FROM HOME? THIS SINGLE FAMILY 3/2 SPLIT PLAN HOME FEATURES A PRIVATE ENTRY OFFICE. THE HOME OVERLOOKS A POND WITH RIPARIAN RIGHTS LOCATED IN THE SERENE AND SOUGHT AFTER CYPRESS COVE! The community has a VOLUNTARY HOA. This allows you to keep RV's, boats, etc. Meticulously maintained 2174 sq. ft. 3 bedrooms, 2 bath home AND THE PRIVATE EXTERIOR ENTRANCE. Upgrades in the last 4 months include exterior and interior, luxury vinyl flooring in the Florida room, primary bedroom and office, new ceiling fans throughout, new interior and exterior light fixtures, new pump for the irrigation and new door hardware throughout. In 2021 a NEW ROOF, NEW GARAGE DOOR AND NEW WATER HEATER were installed. The irrigation uses water from the pond: so, a great money saver. First impressions are everything and this home situated on a quiet street overlooking a pond with stunning Coquina stone and lovely landscaping makes a great first
| 13 hours ago | Listing first seen on site | |
| 13 hours ago | Listing updated with changes from the MLS® |
Listing information is provided by Participants of the Daytona Beach Area Association of REALTORS MLS. IDX information is provided exclusively for personal, non-commercial use, and may not be used for any purpose other than to identify prospective properties consumers may be interested in purchasing. Information is deemed reliable but not guaranteed. Copyright 2025, Daytona Beach Area Association of REALTORS MLS.
Last checked: 2025-10-25 04:12 PM UTC
Did you know? You can invite friends and family to your search. They can join your search, rate and discuss listings with you.