709 Fieldstone AvenuePort Orange, FL 32129




Mortgage Calculator
Monthly Payment (Est.)
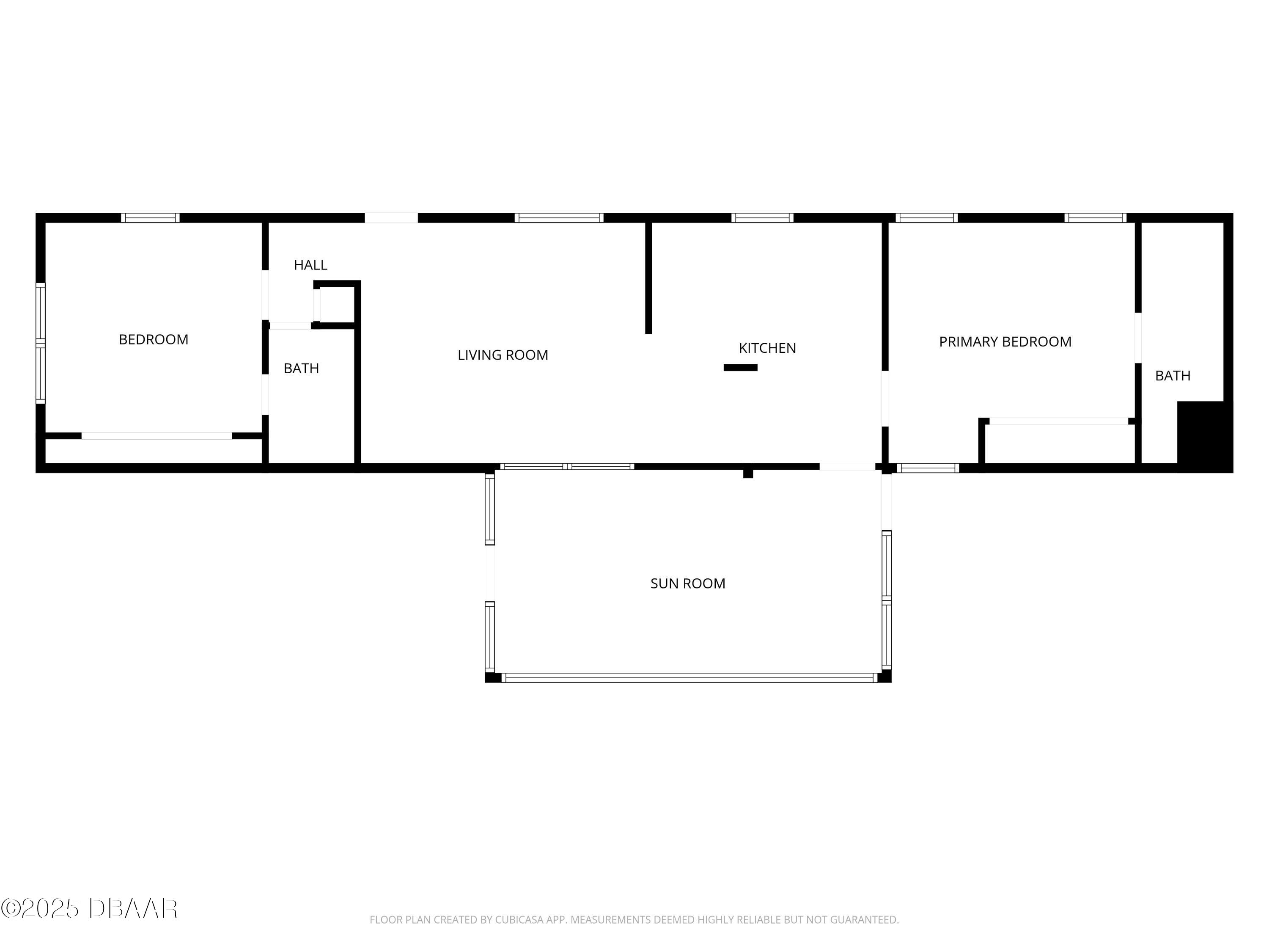
$796Beautiful 2 Bedroom 2 Bath Home with Carport, Window Enclosed Florida Room (with 2021 AC) and Utility Room in the 55+ community of Laurelwood, where you own your own land! The grounds have been very well maintained and feature a new sprinkler pump, control box, relay switch and recently adjusted heads. The backyard is fully fenced and the lawn mower at the home conveys. Enjoy piece of mind with all new plumbing and new water heater. Main AC 2014 / Roof 2004. Additional upgrades include Gutter Guards, New Outside Lighting and recently leveled and painted driveway. HOA is Voluntary $25 per year. Square footage received from tax rolls. All information recorded in the MLS intended to be accurate but cannot be guaranteed.
| 6 days ago | Listing first seen on site | |
| 6 days ago | Listing updated with changes from the MLS® |
Listing information is provided by Participants of the Daytona Beach Area Association of REALTORS MLS. IDX information is provided exclusively for personal, non-commercial use, and may not be used for any purpose other than to identify prospective properties consumers may be interested in purchasing. Information is deemed reliable but not guaranteed. Copyright 2025, Daytona Beach Area Association of REALTORS MLS.
Last checked: 2025-10-27 06:07 PM UTC
Did you know? You can invite friends and family to your search. They can join your search, rate and discuss listings with you.