160 Mendoza CircleDaytona Beach, FL 32124




Mortgage Calculator
Monthly Payment (Est.)
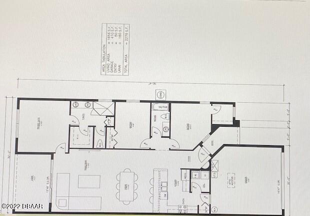
$1,823COMING SOON!!!!One of the few lots remains in LPGA community where you can build your own Villa home and rent the other side for income!! Builder also can just build the other half if you choose to build only one side!! Please view the Floor plan attached under documents. Approximate build 8-12 months Min. Agent Info: Please contact Listing agent for more information. Association Dues covers Exterior paint, Lawn and Roof. Monthly Dues are $192/Month,Master HOA $70.75/Year,Capital Contribution of $250 and transfer fee of $125 when purchased. Other lots 136,132 and 160 are identical.
| 6 months ago | Price changed to $399,500 | |
| 6 months ago | Listing updated with changes from the MLS® | |
| 4 years ago | Status changed to Active | |
| 4 years ago | Listing first seen on site |
Listing information is provided by Participants of the Daytona Beach Area Association of REALTORS MLS. IDX information is provided exclusively for personal, non-commercial use, and may not be used for any purpose other than to identify prospective properties consumers may be interested in purchasing. Information is deemed reliable but not guaranteed. Copyright 2026, Daytona Beach Area Association of REALTORS MLS.
Last checked: 2026-05-15 07:33 PM UTC
Did you know? You can invite friends and family to your search. They can join your search, rate and discuss listings with you.